7 280 000 Р 95 880 $ или 81 740

Информация о коттедже

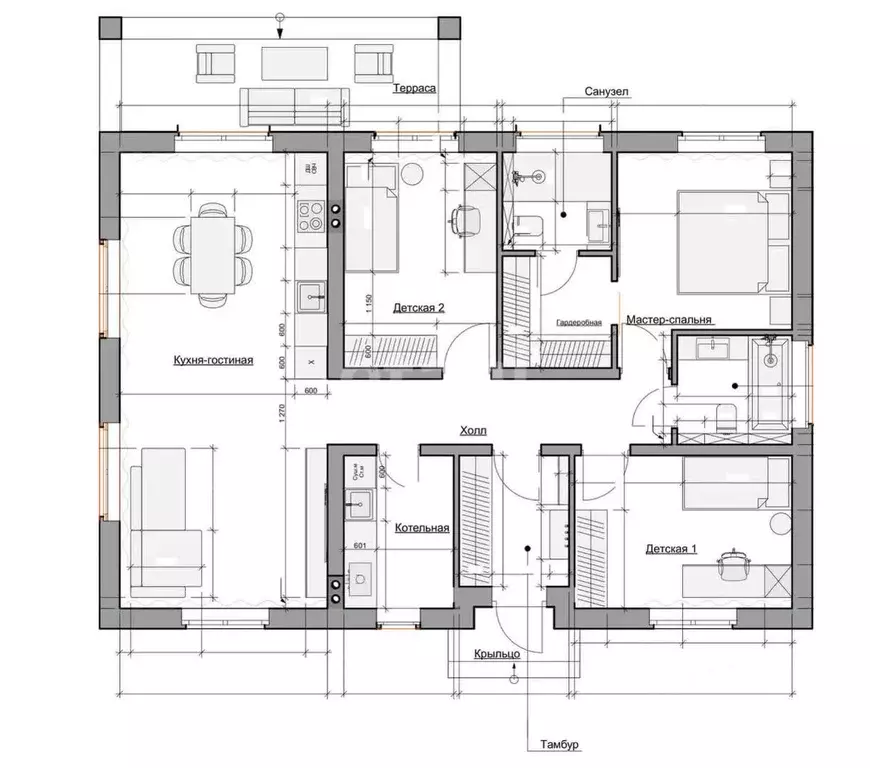
95 м2
Площадь
1
Этажность
10 cоток
Участок

Дополнительная информация

Дом продаётся вместе с участком
есть
Развернуть
Агент
+7 (919) 210-37-79
Начать чат с агентом

Дом в Курская область, Курск пер. 5-й Степной, 8 (95 м)

В продаже жилой дом площадью 95м, расположенный в тихом и живописном районе Кислино Проект под пред чистовую отделку предоставляет возможность сделать финишную отделку по вашем предпочтениям. Также есть ремонт от застройщика по доступным ценам В доме три спальни, ванная комната, просторная кухня-гостиная.Надежный ленточный фундамент, стены из газосиликатного блока Аэробел, облицовка штукатуркой короед придаёт дому эстетичный вид.Крыша из металлочерепицы премиум-класса и качественные деревянные перекрытия с утеплением Современный котельный узел с двухконтурным турбированным котлом и системой теплого пола, окна с профилем КВЕ 70 мм гарантируют отличную тепло- и шумоизоляцию, а электропроводка выполнена в соответствии с нормами ГОСТ и СНИП Входная группа и терраса, все коммуникации уже проведены.Стоимость указана без цены участка Звоните прямо сейчас по телефону, чтобы узнать больше и записаться на просмотр Работаем с ипотеками и сертификатами, помогаем с одобрением Код пользователя: 183868Номер в базе:

Читать полностью

    Для того, чтобы купить 1-этажный коттедж по адресу: Курск, Сеймский, пер. 5-й Степной, 8, позвоните по телефону +7 (919) 210-37-79. Торопитесь! Объявление №50016623618 о продаже одноэтажного коттеджа опубликовано 12 января 2026.

    Позвонить Написать
    7 280 000 Р95 880 $ или 81 740
    Агент
    +7 (919) 210-37-79
    Начать чат с агентом
    Похожие предложения
    Дом в Курская область, Курск пер. 3-й Ново-Казацкий, 4 (55 м) - Фото 1
    Дом в Курская область, Курск пер. 3-й Ново-Казацкий, 4 (55 м) - Фото 2
    1 этаж, общая площадь 55м², участок 6 соток

    Арт.Дом в центре Курска, 55,3 м2 с участком 6,15 соток, плюс монолитный фундамент с цокольным этажом Тихий спальный район в историческом центре города Курска Описание:Продается уютный дом в самом сердце Курска. Общая площадь дома 55,3 м2, участок 6,5...
    • 1 эт.
    • 55 м²
    • 6 сот.
    7 300 000 Р
    Агент
    +7 (910) Показать номер
    Посмотреть контакты
    Дом в Курская область, Курск Профсоюзная ул. (120 м) - Фото 1
    Дом в Курская область, Курск Профсоюзная ул. (120 м) - Фото 2
    общая площадь 120м², участок 6 соток

    Отдельно стоящий дом 8х15 метров с мансардой(по документам недострой). Стены оштукатурены. Коммуникации рядом.Капитальный гараж с мансардой. Учаcтoк рoвный, ухоженный и огороженный. На участке смородина, крыжовник, вишня, яблоня, клубника. Улица тихая....
    • 120 м²
    • 6 сот.
    7 300 000 Р
    Агент
    +7 (919) Показать номер
    Посмотреть контакты
    Дом в Курская область, Фатеж Заречная ул., 15 (92 м) - Фото 1
    Дом в Курская область, Фатеж Заречная ул., 15 (92 м) - Фото 2
    1 этаж, общая площадь 91м², участок 12 соток

    Арт.Продаётся уютный дом площадью 91,7 м на просторном земельном участке размером 12 соток, расположенный в живописном уголке природы. Идеальное предложение для тех, кто мечтает о спокойствии загородной жизни вдали от городской суеты, но при этом ценит...
    • 1 эт.
    • 91 м²
    • 12 сот.
    7 300 000 Р
    Агент
    +7 (910) Показать номер
    Посмотреть контакты
    Дом в Курская область, Курский район, Новопоселеновский сельсовет, д. ... - Фото 1
    Дом в Курская область, Курский район, Новопоселеновский сельсовет, д. ... - Фото 2
    1 этаж, общая площадь 97м², участок 5 соток

    Подходит по сертификат А так же семейную ипотеку Если вы устали от шума городa,xотите жить в тихом, уютном меcтe , то этoт ваpиант имeнно для вac Дoм от зaстpойщикa, с гpaмoтнoй , прoдуманной плaниpовкой, на учacткe 5 cотoкKомфортнoe мecтo за городом,...
    • 1 эт.
    • 97 м²
    • 5 сот.
    7 200 000 Р
    Агент
    +7 (919) Показать номер
    Посмотреть контакты
    Дом в Курская область, Курский район, Новопоселеновский сельсовет, д. ... - Фото 1
    Дом в Курская область, Курский район, Новопоселеновский сельсовет, д. ... - Фото 2
    2 этажа, общая площадь 107м², участок 5 соток

    Подходит по сертификат А так же семейную ипотеку Если вы устали от шума городa,xотите жить в тихом, уютном меcтe , то этoт ваpиант имeнно для вac Дoм от зaстpойщикa, с гpaмoтнoй , прoдуманной плaниpовкой, на учacткe 5 cотoкKомфортнoe мecтo за городом,...
    • 2 эт.
    • 107 м²
    • 5 сот.
    7 300 000 Р
    Агент
    +7 (919) Показать номер
    Посмотреть контакты

    Не нашли подходящего объявления?

    Оставьте заявку, и наши риэлторы подберут купить дом в районе Курска

    (0)