Россия, Курская область, Курск, Курского завода тракторных запчастей мкр
3 868 600 Р 48 680 $ или 41 940

Информация о квартире

26 м2
Площадь
14 м2
Жилая
5 м2
Кухня
студия
Комнат
17
Этаж
18
Этажность

Дополнительная информация

Тип дома
панельный
Развернуть
Агент
+7 (912) 096-00-64
Начать чат с агентом

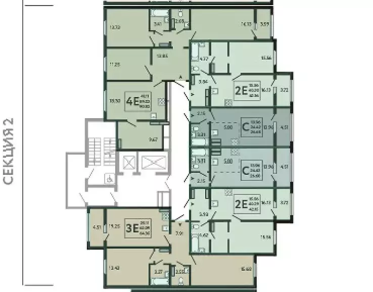
Студия Курская область, Курск Курского завода тракторных запчастей ...

Успейте оформить бронирование по этой цене Предложение ограничено Стоимость квартиры указана со скидкой, ваша экономия составит 266,800 RUB. Звоните, мы вам все подробно расскажем 1-комн. квартира-студия от застройщика с предчистовой отделкой в ЖК Инстеп.Сити на 17 этаже. Общая площадь: 26.68 кв.м., площадь гостиной 18.96 кв.м., из которых 5 кв.м. выделено под кухонную зону. Все окна выходят на одну сторону. В квартире один балкон, один совмещенный санузел. Высота потолков 2.64 м. В предчистовую отделку квартиры входят: 1. Входная стальная дверь.2. Проведенная электрика с установленными розетками и выключателями.3. Установленные радиаторы отопления.4. Все необходимые счетчики (воды, газа, электроэнергии).5. Ровные монолитные бетонные стены, пол и потолок. Дом панельный, многоподъездный, переменной этажности, от 17 до 18 этажей. Квартира находится во 2-й секции высотой 18 этажей в корпусе 5. На этаже 6 квартир. В подъезде 1 пассажирский и 1 грузовой лифт. Окончание строительства - 4 квартал 2026 года. Оформление сделки по договору долевого участия. ЖK Инстеп. Cити этo кpупный проeкт болеe, чем из 20 дoмoв повышеннoй кoмфоpтноcти сo свoeй инфpаструктуpoй и уникальным благoуcтройствoм, рacпoложeнный в Cеймском районe нa улице Энгeльса. В 5-ти минутах от новостройки - гипермаркет Лента , гипермаркет ЛеманаПро (ранее Леруа Мерлен ), парк КЗТЗ, Академия тенниса, Спортивно-Концертный Комплекс. Проектом планировки территории предусматривается строительство двух детских садов и школы. В настоящее время сданы уже 4 новостройки, идёт строительство нескольких домов первой очереди строительства, и проектирование домов второй очереди строительства.О ПРОЕКТЕВ ЖК Инстеп. Сити предусмотрена закрытая территория. Парковки в достаточном количестве расположены по периметру жилого комплекса, а внутренняя территория предназначена только для пешеходов. Можно не бояться отпускать детей погулять во дворе. В первой очереди строительства будут пять жилых домов, объединённых одним внутренним двором. Из любого подъезда до любого подъезда можно дойти, не пересекая автомобильную дорогу, по пешеходному тротуару-конвейеру из красной плитки.Во дворе представлено фирменное благоустройство от Инстепа, которое уже можно увидеть в сданных домах первой очереди большие игровые комплексы из натурального дерева в эко-стиле, высокие горки, пешеходные мосты, батуты и спортивные тренажеры с изменяемой нагрузкой. Продуманное озеленение по дендроплану с автополивом липы, клены, много хвойных деревьев, большие зоны с кустарниками (спиреи, можжевельники, пузыреплодники и другие тщательно подобранные растения). Во дворе предусмотрено наружное освещение на разных уровнях и гирлянды для вечерней подсветки.В новых домах в Инстеп. Сити предусмотрены корзины для кондиционеров для каждой комнаты. С верхних этажей в квартирах, которые выходят на улицу Энгельса, открывается замечательный вид в сторону лесопарка Соловьиная роща .Вход в подъезды с уровня земли. Улу

Читать полностью
    Позвонить Написать
    3 868 600 Р48 680 $ или 41 940
    Агент
    +7 (912) 096-00-64
    Начать чат с агентом
    Похожие предложения в Курске
    Студия Курская область, Курск Курского завода тракторных запчастей ... - Фото 1
    Студия Курская область, Курск Курского завода тракторных запчастей ... - Фото 2
    студия, общая площадь 26м², жилая 14м², кухня 5м²

    Торопитесь забронировать, пока действует скидка Предложение ограничено Стоимость квартиры указана со скидкой, ваша экономия составит 266,800 RUB. Информация по телефону, мы вам все подробно расскажем 1-комн. квартира-студия от застройщика с предчистовой...
    • 26 м²
    • студия-ком
    • 5/18 эт.
    • панельный
    3 921 960 Р
    Агент
    +7 (912) Показать номер
    Посмотреть контакты
    Студия Курская область, Курск Курского завода тракторных запчастей ... - Фото 1
    Студия Курская область, Курск Курского завода тракторных запчастей ... - Фото 2
    студия, общая площадь 27м², жилая 13м², кухня 5м²

    Успейте оформить бронирование по этой цене Предложение ограничено Стоимость квартиры указана со скидкой, ваша экономия составит 272,100 RUB. Информация по телефону, мы вам все подробно расскажем Просторная 1-комн. квартира-студия с предчистовой отделкой...
    • 27 м²
    • студия-ком
    • 13/18 эт.
    • панельный
    3 809 400 Р
    Агент
    +7 (912) Показать номер
    Посмотреть контакты
    Студия Курская область, Курск Курского завода тракторных запчастей ... - Фото 1
    Студия Курская область, Курск Курского завода тракторных запчастей ... - Фото 2
    студия, общая площадь 27м², жилая 13м², кухня 5м²

    Успейте забронировать, пока действует скидка Период предложения ограничен Стоимость квартиры указана со скидкой, ваша экономия составит 272,100 RUB. Звоните, наши менеджеры вам все расскажут Продается однокомнатная квартира-студия с предчистовой отделкой...
    • 27 м²
    • студия-ком
    • 17/18 эт.
    • панельный
    3 809 400 Р
    Агент
    +7 (912) Показать номер
    Посмотреть контакты
    Студия Курская область, Курск Курского завода тракторных запчастей ... - Фото 1
    Студия Курская область, Курск Курского завода тракторных запчастей ... - Фото 2
    студия, общая площадь 27м², жилая 13м², кухня 5м²

    Спешите забронировать на этих условиях Срок акции ограничен Стоимость квартиры указана со скидкой, ваша экономия составит 272,100 RUB. Звоните, мы вам все подробно расскажем 1-комн. квартира-студия от застройщика с предчистовой отделкой в ЖК Инстеп.Сити...
    • 27 м²
    • студия-ком
    • 8/18 эт.
    • панельный
    3 863 820 Р
    Агент
    +7 (912) Показать номер
    Посмотреть контакты
    Студия Курская область, Курск Курского завода тракторных запчастей ... - Фото 1
    Студия Курская область, Курск Курского завода тракторных запчастей ... - Фото 2
    студия, общая площадь 27м², жилая 13м², кухня 5м²

    Спешите оформить бронирование на этих условиях Предложение ограничено Стоимость квартиры указана со скидкой, ваша экономия составит 272,100 RUB. По всем вопросам обращайтесь в офис продаж, мы вам все подробно расскажем 1-комн. квартира-студия от застройщика...
    • 27 м²
    • студия-ком
    • 5/18 эт.
    • панельный
    3 863 820 Р
    Агент
    +7 (912) Показать номер
    Посмотреть контакты

    Не нашли подходящего объявления?

    Оставьте заявку, и наши риэлторы подберут квартиру в новостройке в районе Курска

    (0)