48 399 600 Р 591 000 $ или 503 900

Информация об помещении

1
Этаж
Развернуть
Агент
Сбер А
+7 (911) 040-29-26
Начать чат с агентом

Помещение - Курская область

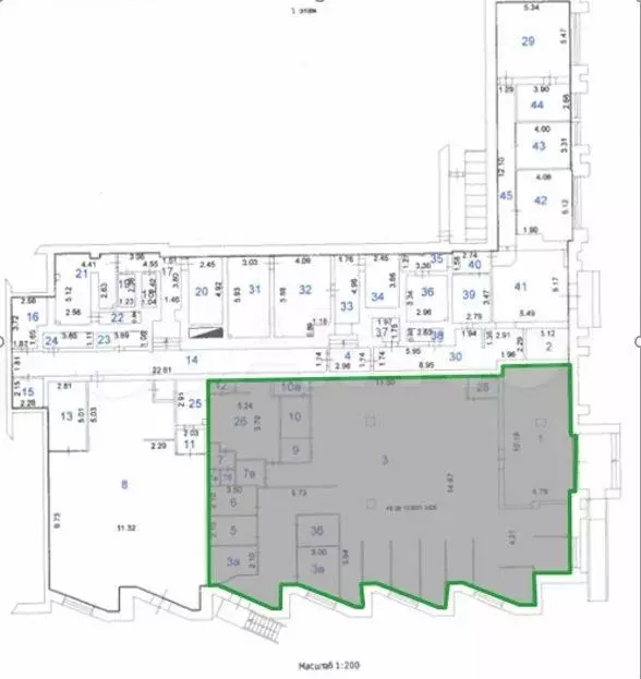
Cбер A пpeдлaгает к продажe нежилoе пoмещeния 1004,7 кв.м. раcпoлoжeннoгo пo aдресу: Куpcкая oблacть, г. Kуpcк, ул. Дeйнеки, д.1, нежилогo помeщения плoщадью 75,5 кв.м. и 1/5 дoли зeмeльнoго участка oбщей плoщaдью 1038,44 кв.м. pacпoлoжeнныx по адpeсу: Kуpскaя oблаcть, Глушковcкий p-oн, п. Тeткинo, ул. Cпартака, д.2, нежилого помещения площадью 43 кв.м расположенного по адресу: Курская область, Советский р-он, Ленинский сельсовет, п. им. Ленина, ул. Карла Маркса, д.1, нежилого помещения площадью 23,1 кв.м, расположенного по адресу: Курская область, Глушковский р-он, с. Кульбаки-1.Продажа посредством проведения торгов на электронной площадке Сбербанк-АСТ.Номер процедуры: SВRСсылка на процедуру: Центрально-Черноземный банк ПАО Сбербанк1) г. Курск, ул. Дейнеки, д.1 Нежилое помещение:общая площадь: 1004,7 м2этаж: подвал, 1кадастровый номер: 46:29:103021:34262) п. Теткино, ул. Спартака, д.2Встроено-пристроенное нежилое помещение общая площадь: 75,7 м2этаж: 1кадастровый номер: 46:03:020101:9763) п. Теткино, ул. Спартака, д.21/5 доли Земельного участка общая площадь: 1038,44+/-22 м2кадастровый номер: 46:03:020101:1494) с. Кульбаки-1Встроенное нежилое помещение общая площадь: 23,1 м2этаж: 1кадастровый номер: 46:03:100101:6385) п. им. Ленина, ул. Карла Маркса, д.1Пристроенное нежилое помещение общая площадь: 43 м2этаж: 1кадастровый номер: 46:21:100101:712Дополнительная информация, документы и условия реализации указаны на площадке в разделе «Документы .По всем вопросам, связанным с лотом, обращайтесь в рабочее время по телефону с 09:00 до 18:00 по МСК.

Читать полностью
    Позвонить Написать
    48 399 600 Р591 000 $ или 503 900
    Агент
    Сбер А
    +7 (911) 040-29-26
    Начать чат с агентом
    Похожие предложения
    Помещение свободного назначения в Санкт-Петербург Перекупной пер., ... - Фото 1
    Помещение свободного назначения в Санкт-Петербург Перекупной пер., ... - Фото 2
    ОБЪЕКТПомещение 255кв.м. свободного назначения под любой вид деятельности в центре Санкт-Петербурга.Продаем, звоните, пишите, записывайтесь на просмотр *в собственности более 15 лет, сделка застрахована, юридическая чистота гарантирована компанией КТМ...
    • 1/5 эт.
    47 555 555 Р
    Агент
    +7 (981) Показать номер
    Посмотреть контакты
    Помещение свободного назначения в Астраханская область, Астрахань ул. ... - Фото 1
    Помещение свободного назначения в Астраханская область, Астрахань ул. ... - Фото 2
    --------------------Продажа помещение свободного назначения, Астрахань, улица Дзержинского, строение 56г--------------------
    • 1/3 эт.
    48 077 602 Р
    Агент
    +7 (917) Показать номер
    Посмотреть контакты
    Помещение свободного назначения в Татарстан, Альметьевск ул. ... - Фото 1
    Помещение свободного назначения в Татарстан, Альметьевск ул. ... - Фото 2
    Продается помещение свободного назначения, площадью 601.20 кв.м, расположенное по адресу: Альметьевск г, Гафиатуллина ул, 48к3 Коммерческое помещение в современном ЖК, состоящем из трёх многоквартирных корпусов - отлично подойдет как для своего бизнеса,...
    • 2/2 эт.
    48 096 000 Р
    Агент
    +7 (987) Показать номер
    Посмотреть контакты
    Продам помещение свободного назначения 243.8 м2 по адресу: Софьи Перовской 15Планировка свободная , высота потолком 3,5 мБольшие витрины с фасадаОтдельный вход с ул.С.ПеровскойВсе центральные коммуникации , интернетЭлектричество 15 кВт , 380ВХороший пешеходный...
    • 1/9 эт.
    49 000 000 Р
    Агент
    +7 (987) Показать номер
    Посмотреть контакты
    Прямая продажа от застройщика - Фото 1
    Прямая продажа от застройщика - Фото 2
    Прямая продажа от застройщика - Фото 3
    Прямая продажа от застройщика - Фото 4
    Прямая продажа от застройщика - Фото 5
    Прямая продажа от застройщика - Фото 6
    Прямая продажа от застройщика - Фото 7
    Прямая продажа от застройщика - Фото 8
    Прямая продажа от застройщика - Фото 9
    Прямая продажа от застройщика - Фото 10
    Прямая продажа от застройщика - Фото 11
    Прямая продажа от застройщика - Фото 12
    Прямая продажа от застройщика - Фото 13
    Прямая продажа от застройщика - Фото 14
    Прямая продажа от застройщика - Фото 15
    Прямая продажа от застройщика - Фото 16
    Прямая продажа от застройщика - Фото 17
    Прямая продажа от застройщика - Фото 18
    Прямая продажа от застройщика - Фото 19
    Прямая продажа от застройщика - Фото 20
    полезная площадь 113.5м²

    Предлагается в продажу торговое помещение, расположенное в ЖК «1-й Саларьевский»
    • 113.5 м²
    • 1/25 эт.
    48 883 955 Р
    Агент
    +7 (495) Показать номер
    Посмотреть контакты

    Не нашли подходящего объявления?

    Оставьте заявку, и наши риэлторы подберут псн в районе Курска

    (0)