46 000 000 Р 595 900 $ или 502 400

Информация об помещении

1
Этаж

Состояние и оснащение

Количество этажей
3
Развернуть
Агент
+7 (919) 272-05-26
Начать чат с агентом

Помещение свободного назначения в Курская область, Курск ...

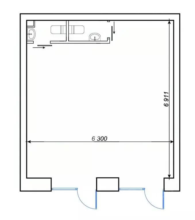
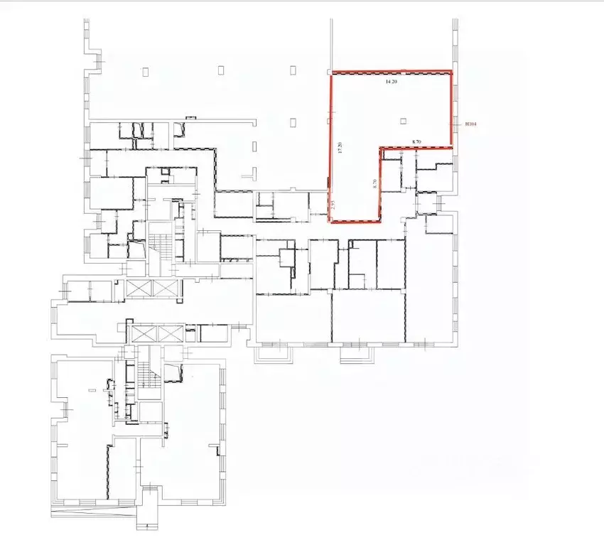
Арт.. Продается здание, 3х этажное (1 и 2 этажи + цоколь) 941.6 кв.м.. Помещение с готовым бизнесом ( арендатор МФЦ на долгосрочной основе, в цокольном этаже торговые помещения различного назначения на долговременной основе) в помещении сделан ремонт. Гарантированная сумма МАП 350 000руб в месяц. У собственника имеется ООО для работы с арендаторами, которое он готов продать для дальнейшей работы новому собственнику по получению арендной платы.Место расположение: Железнодорожный округ города Курска,развитая инфроструктура, Хорошая транспортная доступность. Жилой массив, бoльшой пешехoдный и aвтомoбильный трафик, удoбнaя паркoвкa, мeстo для реклaмы.Реальному покупателю ТОРГ Оперативный показ.Помощь в оформлении ипотеки.Офис для личного посещения и консультации по адресу: г. Курск, пр-т Победы 26, пом. VIIВаши мечты- наша работа ООО ЦУН

Читать полностью
    Позвонить Написать
    46 000 000 Р595 900 $ или 502 400
    Агент
    +7 (919) 272-05-26
    Начать чат с агентом
    Похожие предложения
    Помещение свободного назначения в Московская область, Раменский ... - Фото 1
    Помещение свободного назначения в Московская область, Раменский ... - Фото 2
    Арт.Московская область, Раменский район, д. Юрово.Большой гаражный комплекс на земельном участке 40000 кв.м.(4 га).Участок сельскохозяйственного назначения, разрешенное использование: под унифицированный склад, гараж, мастерскую.На участке три строения:Здание-мастерская-кирп...
    • 1/1 эт.
    46 000 000 Р
    Агент
    +7 (985) Показать номер
    Посмотреть контакты
    Помещение свободного назначения в Брянская область, Брянск Октябрьская ... - Фото 1
    Помещение свободного назначения в Брянская область, Брянск Октябрьская ... - Фото 2
    Код объекта: 1355913.Роскошное место в центре Брянска Высоко рентабельный бизнес Продается действующий бутик-отель Венеция. Венеция - единственный апарт - отель в городе Брянске, деятельность начал в мае 2021-го года. Состоит из 14 просторных...
    • 1/1 эт.
    47 000 000 Р
    Агент
    +7 (910) Показать номер
    Посмотреть контакты
    Продажа ПСН, Афипский, Северский район, ул. Ленина - Фото 1
    Продажа ПСН, Афипский, Северский район, ул. Ленина - Фото 2
    Продажа ПСН, Афипский, Северский район, ул. Ленина - Фото 3
    Продажа ПСН, Афипский, Северский район, ул. Ленина - Фото 4
    Продажа ПСН, Афипский, Северский район, ул. Ленина - Фото 5
    Продажа ПСН, Афипский, Северский район, ул. Ленина - Фото 6
    Продажа ПСН, Афипский, Северский район, ул. Ленина - Фото 7
    Продажа ПСН, Афипский, Северский район, ул. Ленина - Фото 8
    Продажа ПСН, Афипский, Северский район, ул. Ленина - Фото 9
    Продажа ПСН, Афипский, Северский район, ул. Ленина - Фото 10
    Продажа ПСН, Афипский, Северский район, ул. Ленина - Фото 11
    Продажа ПСН, Афипский, Северский район, ул. Ленина - Фото 12
    Продажа ПСН, Афипский, Северский район, ул. Ленина - Фото 13
    Продажа ПСН, Афипский, Северский район, ул. Ленина - Фото 14
    Продажа ПСН, Афипский, Северский район, ул. Ленина - Фото 15
    Продажа ПСН, Афипский, Северский район, ул. Ленина - Фото 16
    Продажа ПСН, Афипский, Северский район, ул. Ленина - Фото 17
    Продажа ПСН, Афипский, Северский район, ул. Ленина - Фото 18
    Продажа ПСН, Афипский, Северский район, ул. Ленина - Фото 19
    Продажа ПСН, Афипский, Северский район, ул. Ленина - Фото 20
    общая площадь 408м², полезная площадь 408м²

    Продаю коммерческую недвижимость площадью 408м2 на земельном участке 3.72 сотки в пгт. Афипский, что в 20 км от Краснодара. Поселок с хорошей инфраструктурой и логистикой. Земельный участок и здание в собственности! Здание расположено на одной из центральных...
    • 408 м²
    • 2-й эт.
    45 690 000 Р
    Агент
    +7 (909) Показать номер
    Агентство
    Эксперт
    Посмотреть контакты
    Помещение свободного назначения в Севастополь ул. Ерошенко, 9 (142 м) - Фото 1
    Помещение свободного назначения в Севастополь ул. Ерошенко, 9 (142 м) - Фото 2
    Арт.Офис Вашей Мечты в Элитном ЖК ВЕРШИНА УСПЕХА — Место, Где Рождается Успех Представьте себе: ваш бизнес процветает в самом сердце престижного района, в окружении респектабельных соседей и с легким доступом для каждого клиента. Именно это предлагает...
    • 1/16 эт.
    45 000 000 Р
    Агент
    +7 (918) Показать номер
    Посмотреть контакты
    Помещение свободного назначения в Орловская область, Орел ул. ... - Фото 1
    Помещение свободного назначения в Орловская область, Орел ул. ... - Фото 2
    Арт.В продаже нежилое помещение в центре Советского района 2 этаж. Сделан косметический ремонт. Свободная планировка. Имеются два подсобных помещения, которые можно использовать под склад или кабинет. Установлен кондиционер, бойлер на 50 литров, счетчики...
    • 2/2 эт.
    45 000 000 Р
    Агент
    +7 (912) Показать номер
    Посмотреть контакты

    Не нашли подходящего объявления?

    Оставьте заявку, и наши риэлторы подберут псн в районе Курска

    (0)