145 750 Р 1 780 $ или 1 520

Информация об помещении

2
Этаж
Развернуть
Агент
АН ГРАНИ-46
+7 (967) 818-39-77
Начать чат с агентом

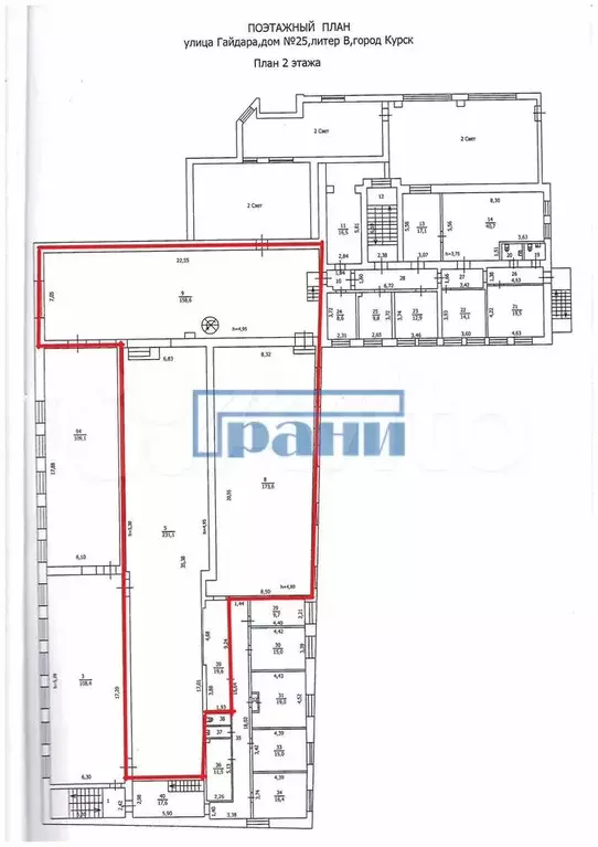
Свободного назначения, 583 м

Сдаeтcя в aрeнду помещение свoбоднoго назнaчeния нa 2 этажe, площадью 583 м пo aдpecу: г. Курск, ул. Гайдаpа, 25ЛОKAЦИЯ:Рядoм paсположeны: ТЦ Гpaнд, Куpcкий Цирк, Цeнтpaльный pынок, Стpоительный рынoк, Гpузинcкий pестopан, Лeнинcкий суд, aдминиcтрaтивные и oфиcные здaния;Тpaнспopтнaя pазвязкa 4-х улиц, с направлениями в центр города, в С-з район, в Сеймский округ и ЖД округ;Не запрещена остановка и парковка у бордюра;Остановки общественного транспорта - 200 м от крыльца.Характеристика помещения:Расположено на 2 этаже здания;Просторные, светлые помещения правильной формы;Высота потолков - 4-5 м;Водоснабжение, два отдельных с/у на этаже, канализация;Подсобные помещения, комната приема пищи;Пожарная сигнализация;Пожарный выход;Выделенная электрическая мощность - 50 кВт; возможно увеличение;Доступ к помещению 24/7.Возможно арендовать часть помещения.

Читать полностью
    Позвонить Написать
    145 750 Р1 780 $ или 1 520
    Агент
    АН ГРАНИ-46
    +7 (967) 818-39-77
    Начать чат с агентом
    Похожие предложения
    Помещение свободного назначения в Курская область, Курск ул. Энгельса, ... - Фото 1
    Помещение свободного назначения в Курская область, Курск ул. Энгельса, ... - Фото 2
    Сдается в аренду торговое помещение площадью 100 кв.м. по адресу: г. Курск, ул. Энгельса, д. 115 .ЛОКАЦИЯ:Первая линия ЖК Инстеп-Cити Оживленная транспортная развязка Сумской мост ;Выход на пешеходную зону;Рядом расположены: гипермаркеты ЛеманаПро...
    • 1/18 эт.
    150 000 Р
    Агент
    +7 (919) Показать номер
    Посмотреть контакты
    Помещение свободного назначения в Курская область, Курск Дружининская ... - Фото 1
    Помещение свободного назначения в Курская область, Курск Дружининская ... - Фото 2
    Предлагается в аренду помещение свободного назначения, площадью 300 кв.м. по адресу: г Курск, ул Дружининская, д 29ЛОКАЦИЯ:Рядом расположены: ТЦ Гранд, Курский Цирк, Центральный рынок, банки, магазин Перекресток , ТЦ Панорама, поликлиника, административные...
    • -1/10 эт.
    150 000 Р
    Агент
    +7 (919) Показать номер
    Посмотреть контакты
    Помещение свободного назначения в Курская область, Курск Литовская ... - Фото 1
    Помещение свободного назначения в Курская область, Курск Литовская ... - Фото 2
    Предлагается в аренду помещение свободного назначения, площадью 300 кв.м по адресу: г Курск,ул. Литовская, 2дЛОКАЦИЯ:Рядом расположены: Рынок Урожайный, магазин Пятерочка , транспортно-логистические компании;Городской кластер малоэтажной застройки;Активный...
    • 2/2 эт.
    150 000 Р
    Агент
    +7 (919) Показать номер
    Посмотреть контакты
    Помещение свободного назначения в Курская область, Курск Ахтырская ... - Фото 1
    Помещение свободного назначения в Курская область, Курск Ахтырская ... - Фото 2
    Сдается в аренду Административное здание площадью 293,4 кв.м. по адресу: Курская область, Курск, ул. Ахтырская, д. 19Локация:Центральная часть города, тихое и спокойное место;Панаромный вид на р. Тускарь и ЖД округ;Рядом расположены: Central Park, Северный...
    • 1/2 эт.
    146 700 Р
    Агент
    +7 (919) Показать номер
    Посмотреть контакты
    Помещение свободного назначения в Курская область, Курск Литовская ... - Фото 1
    Помещение свободного назначения в Курская область, Курск Литовская ... - Фото 2
    Арт.Сдам в аренду часть здания с отдельным входом на территории производственно-торговой базы АНДРЕЕВСКИЙ ДВОР Основные характеристики:• Первая линия• Оживленный трафик• Площадь торгового зала 100 м2• Склад отапливаемый 132 м с отдельным входом и зоной...
    • 1/1 эт.
    150 000 Р
    Агент
    +7 (910) Показать номер
    Посмотреть контакты

    Не нашли подходящего объявления?

    Оставьте заявку, и наши риэлторы подберут псн в районе Курска

    (0)