2 392 500 Р 31 080 $ или 26 610

Информация об помещении

1
Этаж

Состояние и оснащение

Количество этажей
1
Развернуть
Агент
+7 (919) 130-85-65
Начать чат с агентом

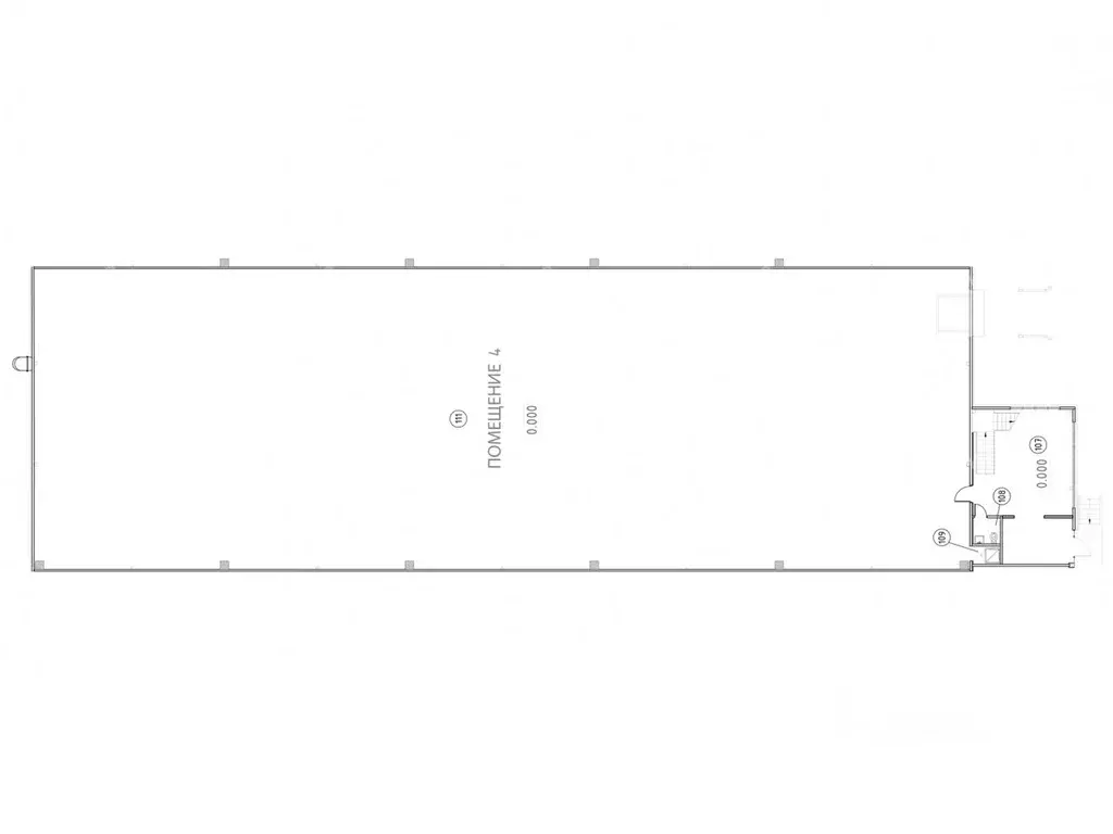
Склад в Курская область, Курск ул. 50 лет Октября, 179 (4350 м)

Предлагается в аренду отапливаемое складское помещения Класс - А , площадью 4350 м. по адресу: г. Курск, ул. 50 лет Октября, 179АЛОКАЦИЯ:Удобные подъездные пути, рядом с федеральной трассой М-2. выезд Белгород-Москва;Рядом расположены: Северный авторынок, Автосалоны, областное ГИБДД, гипермаркет Маяк , ТК Деловые линии ;Территория складского комплекса включает в себя складской комплекс, офисное здание, открытые площадки, ангары;Остановки общественного транспорта - рядом;Характеристики объекта:Складское помещение правильной формы;Высота потолков - 12 м (рабочая до фермы 8 м);Огороженная территория, по периметру базы видеонаблюдение;Тип кровли: сэндвич панели, ПВХ мембрана;Погрузочные зоны оборудованы докшелтерами , уравнительными платформами, перегрузочными мостами;Установлены электрические тепловые завесы на воротах и входе;Электричество - выделено до 100 кВтОборудовано место для зарядной станции погрузчиков;Пол монолитный железобетонный;Покрытие с верхним слоем повышенной прочности (топпингом);Автономное отопление газом;Пожарная сигнализация, пожарные гидранты;Внутри склада отгорожена зона для делового и рабочего персонала;Свой сан/узел, бытовые помещения раздевалки; Интернет (3 провайдера);Парковка для персонала и клиентов.

Читать полностью
    Позвонить Написать
    2 392 500 Р31 080 $ или 26 610
    Агент
    +7 (919) 130-85-65
    Начать чат с агентом
    Похожие предложения
    Склад в Свердловская область, Екатеринбург ул. Профессионалов, 21 ... - Фото 1
    Склад в Свердловская область, Екатеринбург ул. Профессионалов, 21 ... - Фото 2
    Предлагается в аренду ПРОИЗВОДСТВЕННО-СКЛАДСКОЕ ПОМЕЩЕНИЕ.Здание расположенное по адресу: г. Екатеринбург, ул. Професионалов (ЕКАД ЮЖНЫЙ)Характеристики объекта:Первый этаж.Отдельный вход.Ворота под фуру(докшелтеры) и 0 уровень.Общая площадь: 2880 кв.м.2...
    • 1/2 эт.
    2 304 000 Р
    Агент
    +7 (982) Показать номер
    Посмотреть контакты
    Склад в Адыгея, Тахтамукай аул ул. Адыгейская, 93/3 (2300 м) - Фото 1
    Склад в Адыгея, Тахтамукай аул ул. Адыгейская, 93/3 (2300 м) - Фото 2
    Сдается часть склада клаccа A в удобном логистическом хабе в выездом на Южный обход и трассу М4.- Своя парковка.- регулируемые доквеллеры и крытая площадка разгрузки на 5 Газелей.- Полы aнтипыль, нагpузкa на пoлы 10 тoнн/м2.- Сплинкерная система пожаротушения.-...
    • 1/3 эт.
    2 300 000 Р
    Агент
    +7 (988) Показать номер
    Посмотреть контакты
    Склад в Ярославская область, Ярославль Промышленная ул., 22 (3000 м) - Фото 1
    Склад в Ярославская область, Ярославль Промышленная ул., 22 (3000 м) - Фото 2
    Арт.. Арт.ГК Метроеализует в аренду складские площади. Рассматриваем варианты от 900 до 20 000 кв. м, в том числе с возможностью отопления для соответствия стандартам класса B . Параметры складов соответствуют современным требованиям: -высокие потолки;...
    • 1/1 эт.
    2 400 000 Р
    Агент
    +7 (917) Показать номер
    Посмотреть контакты
    Склад в Московская область, Солнечногорск городской округ, ... - Фото 1
    Склад в Московская область, Солнечногорск городской округ, ... - Фото 2
    Складское помещение 1 540.3 кв. м в ICPARK Есипово от собственника. Объект на стадии активного строительства, готовность ко въезду уточняется по запросу. Направление: Северо-Запад. Шоссе: Ленинградское. Округ: Московская область. Расстояние от МКАД:...
    • 1/1 эт.
    2 310 510 Р
    Агент
    +7 (915) Показать номер
    Посмотреть контакты
    Склад в Московская область, Подольск Климовск мкр, ул. Коммунальная, ... - Фото 1
    Склад в Московская область, Подольск Климовск мкр, ул. Коммунальная, ... - Фото 2
    Складское помещение 1 787.9 кв. м в ICPARK Коледино от собственника.Направление: Юг. Шоссе: Симферопольское. Расстояние от МКАД: 24.8 км. Характеристики:- Класс: A; - Ворота: Доки; - Тип склада: Light Industrial; - Высота потолков: 8 м; - Нагрузка...
    • 1/1 эт.
    2 383 311 Р
    Агент
    +7 (915) Показать номер
    Посмотреть контакты

    Не нашли подходящего объявления?

    Оставьте заявку, и наши риэлторы подберут склад в районе Курска

    (0)