58 000 000 Р 717 100 $ или 621 100

Информация об помещении

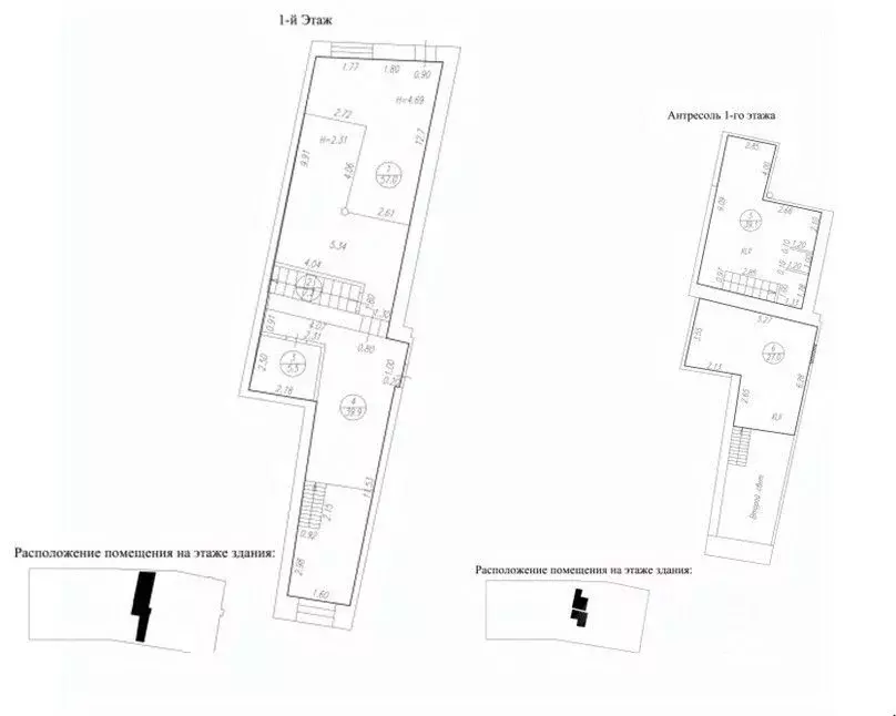
1
Этаж

Состояние и оснащение

Количество этажей
4
Развернуть
Агент
+7 (910) 362-08-43
Начать чат с агентом

Помещение свободного назначения в Курская область, Железногорск ...

Предлагается к продаже часть здания - нежилые помещения общей площадью 3949 кв.м. (площадь всего здания 4984,6 кв.м.). Кабинетная и зальная планировка - в зависимости от этажа. Этажность расположения помещения - с цокольного этажа по 4 этаж. Здание находится в квартале, ограниченном улицами: Курской, Гагарина, Ленина, Гайдара. Удобный подъезд грузового транспорта, возможность хранения товаров на территории . В здании центральные коммуникации: тепло, вода, канализация, электричество. Прямая продажа от собственника - ПАО Ростелеком . После завершения административных внутрикорпоративных процедур стоимость продажи может быть уточнена. Просьба связываться с указанным контактным лицом для уточнения информации и текущего статуса продажи объекта недвижимости.

Читать полностью
    Позвонить Написать
    58 000 000 Р717 100 $ или 621 100
    Агент
    +7 (910) 362-08-43
    Начать чат с агентом
    Похожие предложения
    Помещение свободного назначения в Курская область, Курск Орловская ... - Фото 1
    Помещение свободного назначения в Курская область, Курск Орловская ... - Фото 2
    Центр Недвижимости МОЙ ГОРОД предлагает в продажу:Здание площадью 1515,9 м, завершённое и введённое в эксплуатацию. Аренда земельного участка существует до 2072 года. Объект подходит для торгово-офисного использования и общепита. Основные характеристики:...
    • 5/5 эт.
    59 000 000 Р
    Агент
    +7 (910) Показать номер
    Посмотреть контакты
    Помещение свободного назначения в Ростовская область, Ростов-на-Дону ... - Фото 1
    Помещение свободного назначения в Ростовская область, Ростов-на-Дону ... - Фото 2
    Помещение под Торговлю и общепит площадью 282, 73 кв. м в новом Клубном доме ПроявлениеИдеально для реализации Вашего бизнеса Характеристики и преимущества:- Расположен в цоколе 7-ми этажного клубного дома бизнес-класса- находится в Южной Башне Премиального...
    • -1/7 эт.
    58 912 700 Р
    Агент
    +7 (988) Показать номер
    Посмотреть контакты
    Помещение свободного назначения в Москва Ленинский просп., 79 (69 м) - Фото 1
    Помещение свободного назначения в Москва Ленинский просп., 79 (69 м) - Фото 2
    Арт.Продается помещение свободного назначения 68,9 кв.м. на 1 этаже 9ми этажного жилого дома на ключевой артерии города Ленинский проспектПомещение без ремонта 2 отдельных входа с улицы и двора, высокие потолки 4 м, витринное остекление, мокрая точка,...
    • 1/9 эт.
    59 000 000 Р
    Агент
    +7 (933) Показать номер
    Посмотреть контакты
    Помещение свободного назначения в Санкт-Петербург просп. Крузенштерна, ... - Фото 1
    Помещение свободного назначения в Санкт-Петербург просп. Крузенштерна, ... - Фото 2
    Продаётся помещение свободного назначения площадью 149.7 кв. м. в новостройке ЖК Морская набережная (Бульвар+SeaView) по адресу Санкт-Петербург, Василеостровский, проспект Крузенштерна, 4. Окна с видом во двор и на улицу. Высота потолков 4.00 м. Отдельный...
    • 1/15 эт.
    58 293 180 Р
    Агент
    +7 (911) Показать номер
    Посмотреть контакты
    Помещение свободного назначения в Москва Холодильный пер., 3к1с2 (103 ... - Фото 1
    Помещение свободного назначения в Москва Холодильный пер., 3к1с2 (103 ... - Фото 2
    ВАЖНО: БЕЗ КОММИССИ ДЛЯ АРЕНДАТОРОВ, ПРЯМАЯ ПРОДАЖА ОТ СОБСТВЕННИКАБизнес-центр B+ класса Рябовская мануфактура расположен по адресу Москва, ЮАО, район Даниловский, Холодильный пер., дом3,к1стр2, в пешей доступности от метро Тульская (2 мин).Характеристики...
    • 1/2 эт.
    57 680 000 Р
    Агент
    +7 (915) Показать номер
    Посмотреть контакты

    Не нашли подходящего объявления?

    Оставьте заявку, и наши риэлторы подберут псн в районе Железногорска

    (0)